Blog

Salzburg – Volksschule competition Austria

2023.03.02.

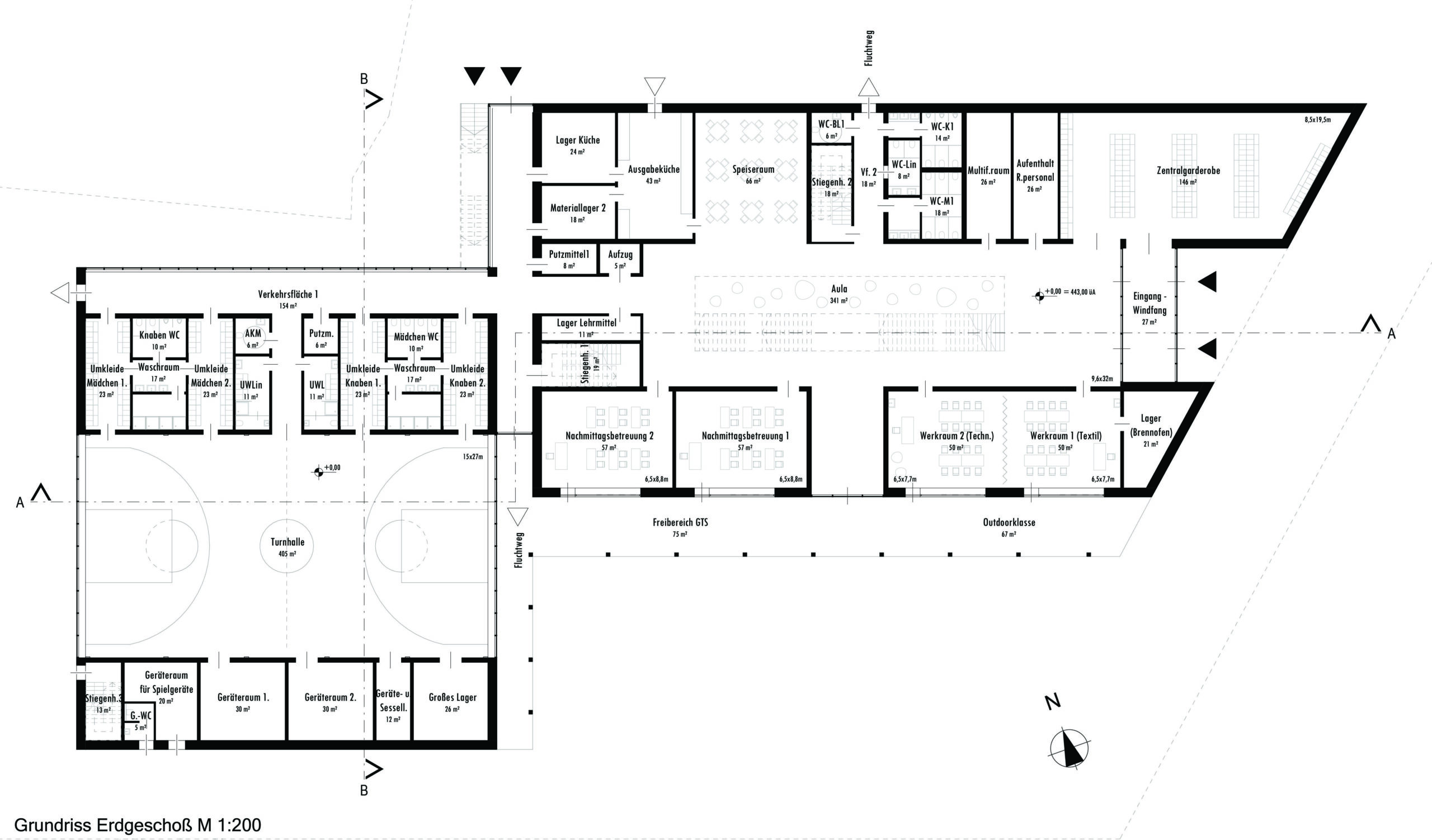
This time, the Competition Team of the IN-EX architects took part in a competition to design a new primary school. The location was the small village of Fürstenbrunn near Salzburg. The project consisted of the design of a primary school, a “day-care centre” and associated gymnasium and teacher’s apartments (about 4000 m2), according to the cluster school concept, which is common in Austria. The school yard had to be resolved, and the playground of the kindergarten was moved, too.

The setting is the Salzach river valley, with the mountains dominating the landscape. The surrounding buildings are small, detached houses and some apartment blocks. The only major building is the kindergarten next door. The parking spaces are located along the northern boundary of the site, next to the road with vehicular traffic. The main entrance is from the south-east pedestrian street. The separate gym, with teachers’ apartments in the same part of the building, is located in the western, rear part of the site, and the school block itself is in the eastern part, at the street front. The school yard is attached to the playground south of the school. A canopy connects the building to the yard, under which outdoor activities can be held. We have tried to make the building friendly and to blend in with the environment, using materials that are often used locally:

  • the ground floor is paved with local conglomerate limestone,
  • the upstairs area is covered with wood (CLT wood panel).

With the detailing and the interior design elements (door handles, washbasins), we tried to evoke the architectural environment in a slightly reinterpreted way. From the outside, the building appears as a unified mass strung along the north-south and the east-west walkways, with balconies and most openings hidden behind shading with wooden lamellae on the upper floors and small windows in the stone cladding on the ground floor.

The building consists of a ground floor + 2 storeys, with a large central air space that functions as an assembly hall on the ground floor, with an adjoining dining room, changing rooms, workshops, day care and an exit to the yard. Upstairs, there is a “marketplace” that can host community and physical education activities. Here, the classrooms are on the northern front, and the other functions are on the southern side: the staff rooms, the headmaster’s office, the music room, and the library. The view of the mountains is “composed” into the upstairs rooms and terraces on the south side.

The building must be fully accessible. Sustainability had to be taken into account in the choice of building materials and technologies, as well as in the energy concept: among other things, the main block was given a green roof and the gym roof was fitted with solar panels. In the process, we tried to find out which part of the work could be most efficient to process with which software: The sketches were started in 2D CAD and later imported into our 3D design software.

The façade images and the compilation of the tables, on the other hand, were created in a photographic program. As usual for Austrian entries, we had to print a 1:500 scale model, which was then inserted into the model of the environment. It was a great experience to work with this team: every task found its owner as if by miracle, and the result was a building and a competition entry material that is a pleasure to look at.

Architects:

Sándor Jassó

Péter Krámer

Barbara Csillik

Adrienn Bársony

Ema Manasievska

Róbert Horváth

Anna Istók

Yuliia Shyrobokykh

Gábor Szász

Ádám Nagy

Energetic concept

Antal Szilágyi

3D- printing

István Ozsváth

German translation

Enikő Szivek

Recent posts

2026.04.29.

Children in the World of Engineering – #showuswhatyoudo Day

In the spring of 2026, the Studio IN-EX office once again filled with life as we hosted our now traditional #showuswhatyoudo day. This occasion is special every year, as it gives children not only the chance to hear about what their parents do, but also to experience it firsthand.

2026.03.16.

Career Orientation Day in Our Debrecen Office

During a career orientation day at the STUDIO IN-EX Debrecen office, we provided insight into the workflow and complexity of BIM-based integrated design.

2026.02.10.

The role of copyright in design

Before signing a design contract, it is crucial for every designer to familiarise themselves with copyright issues, which are almost always included in contracts. In the seecond part of our legal blog series, we highlight the role of copyright in design.

2025.12.11.

What is the fundamental difference between additional and supplementary work?

One of the greatest difficulties for designers during design projects is determining when requests arising from the client’s expectations or designs prepared based on the contract between the parties can be considered additional or supplementary work.

2025.05.27.

Show us where you work – A day at STUDIO IN-EX through the eyes of children

We celebrated one of the happiest days of Spring at STUDIO IN-EX: it was the MUTIHOLDOLGOZOL DAY, also known as “Show me where you work”, when children could enter the world of adults, specifically the exciting universe of architects, mechanical, electrical and structural engineers.

2025.04.29.

Hydro Extrusion – Office with a Minimalist Design

Hydro Extrusion Hungary Kft. is a subsidiary of a Norwegian parent company, so an important aspect of the interior design process was to ensure that the minimalist aesthetic and the company’s brand colors are harmoniously reflected throughout the interior spaces.